Residential Plot in Mijas Golf rajons: Mijas Golf — Dzīvojamais zemes gabals
Dzīvojamais zemes gabals

Residential Plot in Mijas Golf

Šis ir zeme, kas atrodas Mijas Golf, Malagā, piedāvājot iespēju uzbūvēt vienģimenes māju. Projekts ir pilnībā gatavs, ar piešķirtu būvatļauju un samaksātiem nodokļiem, kas ļauj nekavējoties uzsākt būvniecību. Zeme atrodas ekskluzīvā urbanizācijā ar attīstītu infrastruktūru un piedāvā skatus uz Sjeru de Mihu un jūru.

No €199,000
No €199,000
Sākumcena
1.8 km
Līdz pludmalei
Gatava dzīvošanai
Būvstāvoklis

Projekta analīze

Atslēgas informācija par atrašanās vietu, mājām, projekta posmu un uzmanības punktiem.

Atrašanās vieta

Šis zemes gabals atrodas Mijas Golf, piedāvājot dzīvošanu pie golfam, vienlaikus nodrošinot piekļuvi pilsētas infrastruktūrai. Tā atrašanās vieta nodrošina ērtu piekļuvi pludmalēm un dažādām atpūtas iespējām.

Plānojumi

Šis ir piemērots risinājums personām vai maziem attīstītājiem, kuri vēlas nekavējoties uzsākt būvniecību savai mājai, izvairoties no birokrātiskām aizkavēšanās. Pieejamais apstiprinātais projekts piedāvā modernu un funkcionālu dizainu.

Projekta status

Zemes gabals ir pieejams tūlītējai būvniecībai. Ir saņemta būvatļauja un samaksāta IMI, un ir pieejams apstiprināts pamata projekts, kas ļauj nekavējoties sākt būvdarbus.

Uzmanības punkti

Šis piedāvājums ir tikai zemes gabals ar būvatļauju; tas nenodrošina jau uzbūvētu īpašumu. Nav iekļautas mēbeles, iekārtas vai ainavu veidošana. Pircējam ir jāveic visa būvniecība atbilstoši apstiprinātajam projektam vai jāveic izmaiņas.

Projekta informācija

Projekts Residential Plot in Mijas Golf
Pilsēta Mijas Golf
Reģions Costa del Sol
Sākumcena €199,000
Autostāvvieta
Baseins
Dārzs
Būvstāvoklis key_ready
Līdz pludmalei 1.8 km
Pabeigšana 1970
Publicēts 2026-04-17

Ref: VL315939

Avots: Wikipedia, Wikidata, INE, Junta de Andalucía

Dzīvesveids un apkārtne

Šis īpašums ir piemērots personām, kuras meklē iespēju uzbūvēt pielāgotu mājokli bez ilgstošas birokrātiskas procesa. Tas ir ideāli piemērots tiem, kas vēlas sākt būvniecību nekavējoties, piemēram, maziem attīstītājiem vai privātpersonām, kurām nepieciešama ātra realizācija. Tā piedāvātās ainavas un atrašanās vieta pie golfa laukumiem varētu patikt arī sporta entuziastiem. Tāpat tas der tiem, kas novērtē skatus uz kalniem un jūru, kā arī ērtu piekļuvi pilsētas dzīvei un pludmalēm.

Būvniecības kvalitāte

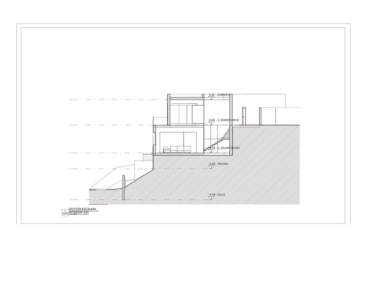
Tā kā tas ir zemes gabals, nav informācijas par esošās celtnes apdares kvalitāti. Tomēr pieejamais apstiprinātais pamata projekts paredz divu līmeņu modernu un funkcionālu māju. Projekts ietver dzīvojamo zonu ar virtuvi, ēdamistabu un biroju pirmajā stāvā, kā arī guļamistabas zonu ar galveno guļamistabu, vannas istabu un divām papildu guļamistabām otrajā stāvā. Projektā ir paredzēts arī iekšpagalms apgaismojumam un ventilācijai, kā arī iespēja izbūvēt baseinu.

Apkārtne un dzīvesveids

Cena un pieejamība

Šis zemes gabals ar būvatļauju un samaksātu IMI ir pieejams par cenu sākot no 199 000 €. Šī cena atspoguļo esošās būvatļaujas priekšrocību, kas samazina laiku un izmaksas pircējam. Pieejamība ir tūlītēja, ļaujot sākt būvniecību bez kavēšanās.

€199,000
Sākumcena

Apkārtne un dzīvesveids

Šis ir zemes gabals, kas atrodas Mijas Golf, Malagā, pilsētas vidē, kurā ir pieejamas daudzas ērtības, tostarp restorāni, aptiekas un bankas, kas atrodas pastaigas attālumā. Tā atrašanās vieta nodrošina piekļuvi golfam un tuvējām pludmalēm. Dienas dzīves ritmu var raksturot kā līdzsvaru starp mierīgu dzīvi pilsētas tuvumā un piekļuvi piekrastes aktivitātēm. Apkārtnē ir daudz restorānu un veikalu, kas atvieglo ikdienas dzīvi.

Pieprasīt informāciju

Atrašanās vieta: Mijas Golf

Apkārtne

Šī atrašanās vieta Mijas Golf piedāvā pilsētas dzīves ērtības ar piekļuvi dažādiem pakalpojumiem un restorāniem pastaigas attālumā. Tuvumā atrodas vairākas skolas un veselības aprūpes iestādes, padarot to piemērotu arī ģimenēm. Pilsētas centrs ir viegli sasniedzams, nodrošinot piekļuvi plašākam pakalpojumu klāstam un kultūras aktivitātēm. Tā kā tuvumā ir golfa laukumi un pludmales, apkārtne piedāvā arī plašas atpūtas iespējas.

Karte un atrašanās vieta

Šī karte parāda zemes gabala atrašanās vietu Mijas Golf, Malagā. Tā izceļ tuvumu golfa laukumiem, pludmalēm, pilsētas centriem un lidostai, demonstrējot ērtu piekļuvi gan atpūtai, gan pilsētas infrastruktūrai.

Oceanfront room with balcony, stunning beach and ocean view, modern amenities.

Novietojums reģionā

Šis zemes gabals atrodas Mijas Golf, kas ir daļa no Malagas provinces. Tā ir stratēģiski novietota, lai nodrošinātu piekļuvi gan piekrastes zonām, gan pilsētas ērtībām. Tā ir netālu no Málagas pilsētas, nodrošinot piekļuvi plašākam pakalpojumu un kultūras piedāvājumam, vienlaikus piedāvājot dzīvi mierīgākā vidē.

Satiksme un infrastruktūra

Zemes gabals atrodas 7,9 km attālumā no Malagas lidostas, nodrošinot ērtu piekļuvi starptautiskiem lidojumiem. Pilsētas centrs un dažādi pakalpojumi, piemēram, lielveikali, aptiekas un veselības centri, ir viegli sasniedzami, daži no tiem pat pastaigas attālumā. Tuvumā atrodas arī vairāki golfa laukumi un pludmales, piemēram, Playa de San Andrés, kas atrodas 1,8 km attālumā. Pilsētā ir arī efektīva sabiedriskā transporta sistēma ar 7 OV līnijām un 50 pieturām.

Līdz pludmalei 1.8 km
Malaga-Costa del Sol (AGP) 8 km
Gibraltar (GIB) 104 km
Atarazanas 0.2 km
Málaga Centro Alameda 0.3 km

Avots: OpenStreetMap, Google Maps

Aerial view of a coastal town with a beach and clear blue sky.

Daba un klimats

Alt text: Panoramic view of a mountainous landscape with a small town below.

Reģions bauda Vidusjūras klimatu ar vidējo temperatūru no 12°C līdz 26°C un aptuveni 3888 saules stundām gadā. Šis klimats nodrošina garu peldsezonu, kas ilgst apmēram 5 mēnešus, kad ūdens temperatūra ir virs 20°C. Zemes gabals atrodas 6 metru augstumā virs jūras līmeņa, ar minimālu slīpumu līdz pludmalei, kas ir 0,3%. Apkārtne ir pazīstama ar saviem kalniem, piedāvājot plašus skatus.

3888 Saules stundas/gadā
5 Peldsezona (mēneši)
18.9°C Vid. gada temp.
6m Augstums vjl.

Avots: Open-Meteo (2020–2025 vidēji)

Pludmales un atpūta

Šis zemes gabals atrodas netālu no dažādām pludmalēm, tostarp Playa de San Andrés (1,8 km) un Playa de la Misericordia (3,2 km), kas piedāvā piekļuvi jūrai un saules peldēm. Apkārtne ir slavena arī ar saviem golfa laukumiem, ar vairākiem pieejamiem, piemēram, Club de Golf Málaga Parador (8,2 km). Tāpat tuvumā atrodas sporta centri un jahtu piestātnes, nodrošinot plašas atpūtas un sporta aktivitātes.

Pludmales

  • Playa de San Andrés 1.8 km
  • Playa de la Misericordia 3.2 km
  • Playa de los Baños del Carmen 3.8 km
  • Playa de Pedregalejo 4.6 km
  • Playa Sacaba Beach 4.6 km

Golf

  • Club de Golf Málaga Parador 8.2 km
  • Club de Golf de Guadalhorce 9.4 km
  • Campo de Golf Miguel Ángel Jiménez 11.1 km

Avots: OpenStreetMap

White-walled building with terracotta roof, balconies, and potted plants.

Novietojums reģionā

Šis zemes gabals atrodas Mijas Golf, kas ir daļa no Malagas provinces. Tā ir stratēģiski novietota, lai nodrošinātu piekļuvi gan piekrastes zonām, gan pilsētas ērtībām. Tā ir netālu no Málagas pilsētas, nodrošinot piekļuvi plašākam pakalpojumu un kultūras piedāvājumam, vienlaikus piedāvājot dzīvi mierīgākā vidē.

Vietas gids: Mijas Golf

Galvenie fakti

Klimats

Mēnesis Vidējā temperatūra Nokrišņi
Janvāris 12.1°C 62 mm
Februāris 12.4°C 64 mm
Marts 14.4°C 53 mm
Aprīlis 16.4°C 36 mm
Maijs 18.6°C 33 mm
Jūnijs 22.7°C 7 mm
Jūlijs 26.1°C 1 mm
Augusts 26.5°C 2 mm
Septembris 23.2°C 9 mm
Oktobris 19.3°C 52 mm
Novembris 15.4°C 77 mm
Decembris 12.8°C 71 mm

Tuvākie objekti

384 restaurant
124 pharmacy
73 bank
157 cafe
26 dentist

Augstums un reljefs

6m Augstums vjl.
1.8 km Līdz pludmalei
0.3% Slīpums uz pludmali

Līdzens

Tuvumā

Skatu punkti

Sporta centri

Ev Charging

Golfa laukumi

Pludmales

Jahtu ostas

Transports

8 km Malaga-Costa del Sol (AGP)
104 km Gibraltar (GIB)
383 km Alicante-Elche (ALC)
0.2 km Atarazanas
0.3 km Málaga Centro Alameda
0.4 km Guadalmedina
0.4 km Estación de Muelle Heredia
0.9 km Estación de Autobuses de Málaga

Kopsavilkums

  • Zemes gabals ar būvatļauju un samaksātu IMI, gatavs būvniecībai.
  • Atrodas ekskluzīvā Mijas Golf urbanizācijā ar skatu uz kalniem un jūru.
  • Ietver apstiprinātu pamata projektu modernai divu līmeņu mājai un baseinam.
  • Pastaigas attālumā no pilsētas ērtībām un īsas brauciena attālumā no pludmalēm un golfa laukumiem.
  • Ideāli piemērots personām vai attīstītājiem, kas vēlas nekavējoties uzsākt būvniecību.

Reģionālā salīdzinājuma

Šis zemes gabals Mijas Golf piedāvā unikālu iespēju uzsākt būvniecību nekavējoties, pateicoties piešķirtajai būvatļaujai un samaksātajiem nodokļiem. Šis faktors atšķir to no citiem zemes gabaliem reģionā, kur bieži vien ir nepieciešams ilgs un sarežģīts atļauju saņemšanas process. Salīdzinot ar jau uzbūvētiem īpašumiem, piemēram, Arosa Mijas (sākot no 490 000 €), Waterfall Residences Fuengirola (sākot no 720 000 €) vai Astra Homes Fuengirola (sākot no 364 000 €), šis piedāvājums ļauj pircējam kontrolēt būvniecības izmaksas un dizainu. Lai gan tie ir gatavi īpašumi, tie nenodrošina tādu pašu pielāgošanas brīvību kā zemes gabals ar būvatļauju. Šis projekts varētu būt pievilcīgāks personām, kas meklē konkrētu mājas dizainu vai vēlas izvairīties no augstākām cenām, kas saistītas ar pabeigtiem būvniecības projektiem, vienlaikus nodrošinot būtisku priekšrocību – gatavu atļauju.

Bieži uzdotie jautājumi

Vai ir iespējams uzsākt būvniecību nekavējoties?
Jā, zemes gabalam ir piešķirta būvatļauja un samaksāts IMI, kas ļauj nekavējoties sākt būvniecību.
Cik tālu ir tuvākās pludmales un lidosta?
Tuvākā pludmale, Playa de San Andrés, ir 1,8 km attālumā. Malagas lidosta atrodas aptuveni 7,9 km attālumā.
Kādi ir galvenie būvniecības projekta elementi?
Apstiprinātais projekts paredz divu līmeņu savrupmāju ar dzīvojamo zonu, virtuvi, biroju, guļamistabām un vannas istabām, kā arī paredzēts baseins.
Kāda ir šī zemes gabala priekšrocība tirgū?
Galvenā priekšrocība ir piešķirtā būvatļauja un samaksātie nodokļi, kas ļauj nekavējoties uzsākt būvniecību, atšķirībā no citiem zemes gabaliem, kuriem vēl jāsaņem atļaujas.
Kādi pakalpojumi ir pieejami pastaigas attālumā?
Pastaigas attālumā ir pieejami dažādi pakalpojumi, tostarp lielveikals (73 m), aptieka (211 m), restorāni, kafejnīcas un bankas.
Vai ir vēl kādi izdevumi, kas jāmaksā, izņemot zemes gabala cenu?
Ir samaksāts IMI (būvniecības nodoklis). Papildu izmaksas ietver būvniecības izmaksas atbilstoši projektam un jebkuras nepieciešamās izmaiņas projektā.
Kāds ir pirkšanas process šim zemes gabalam?
Pirkšanas process ietver zemes gabala iegādi ar esošo būvatļauju. Detalizēta informācija par pirkšanas procesu būtu jālūdz pārdevējam vai viņa pārstāvim.
Kāda ir apkārtnes raksturīgā vide?
Apkārtne ir Mijas Golf, pilsētas vidē ar piekļuvi golfa laukumiem, skatiem uz kalniem un jūru, kā arī ērtu piekļuvi pilsētas pakalpojumiem un pludmalēm.
Maiko
Maiko
Nekustamo īpašumu eksperts

Maiks ir nekustamā īpašuma eksperts, kas specializējas Spānijas nekustamā īpašuma tirgū. Ar padziļinātām zināšanām par Costa del Sol, Costa Blanca un citām populārām piekrastes reģioniem, viņš palīdz pircējiem atrast piemērotāko mājokli. Viņš analizē piedāvājumu, pamatojoties uz atrašanās vietu, tirgus vērtību, būvniecības kvalitāti un dzīves kvalitāti, kā arī sniedz godīgus, uz datiem balstītus padomus visa pirkšanas procesa laikā.

Atbilde 24 stundu laikā

Interesē?

Atstājiet savus datus, lai saņemtu informāciju par pieejamību, cenām un plānojumiem.

Tehniskie dati
Zemes gabals ar 711 m² platību.
Būvatļauja ir piešķirta, un IMI ir samaksāta.
Projekts paredz divu līmeņu savrupmāju ar baseinu.

Conversation history

Ask a question to start