4 Bed Detached Villa in Nerja في Nerja — فيلا منفصلة
فيلا منفصلة

فيلا منفصلة للبيع في نيرخا - 4 غرف نوم، 3 حمامات

تقع هذه الفيلا المنفصلة الجديدة في نيرخا، وتوفر إطلالات بانورامية على البحر ومساحة معيشة واسعة ومرافق حديثة. تضم الفيلا 4 غرف نوم و 3 حمامات وشرفات خاصة متعددة وصالة تشمس ومسبح خاص. بالإضافة إلى ذلك، توفر موقف سيارات خاص وقبوًا واسعًا، مما يضمن الراحة والوظائف العملية. تم الحصول على رخصة البناء بالفعل، ومن المقرر بدء الإنشاءات في أوائل عام 2026، مع توقع تسليم أول وحدتين في أوائل عام 2027. تقع هذه الفيلا في منطقة ريفية هادئة وواعدة في نيرخا، على مقربة من الساحل.

€875,000
4
غرف النوم
3
الحمامات
222 m²
مساحة المعيشة
€875,000
Prijs
4.1 km
مسافة الشاطئ

تحليل المشروع

أهم خصائص الموقع، والوحدات، ومراحل المشروع، ونقاط الاهتمام.

الموقع

يقع المشروع في بيئة ريفية هادئة في نيرخا، بالقرب من الساحل. على الرغم من بُعده النسبي عن مطار مالاغا (63 كم)، تتميز المنطقة المحيطة بالمناظر الطبيعية الخلابة، مما يجعلها مناسبة للمشترين الذين يبحثون عن حياة هادئة. يعد استخدام السيارة ضروريًا للتنقلات اليومية.

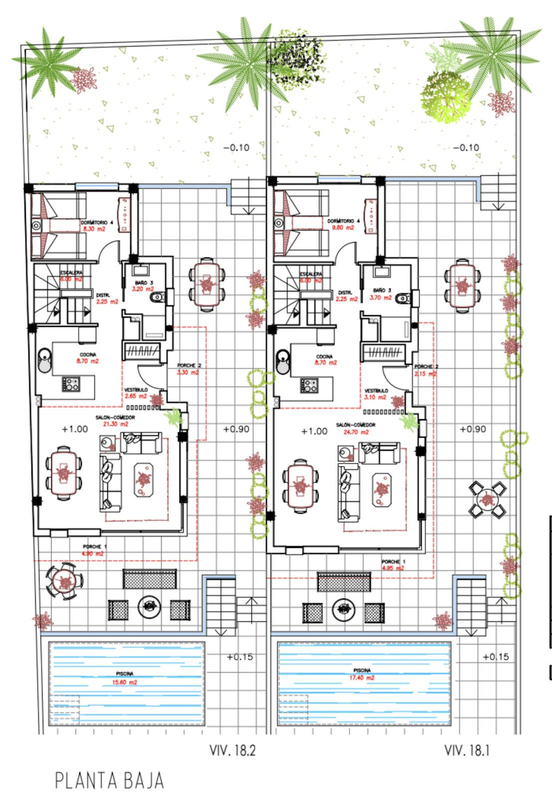
المخططات

تم تصميم هذه الفيلا لتلبية احتياجات المشترين الذين يبحثون عن مساحة وراحة وخصوصية. توفر أربع غرف نوم وثلاث حمامات، بالإضافة إلى مسبح خاص وصالة تشمس، مما يجعلها مثالية للمعيشة العائلية أو كمنزل لقضاء العطلات.

حالة المشروع

المشروع عبارة عن فيلات منفصلة جديدة، وقد تم منح ترخيص البناء، ومن المقرر بدء الإنشاءات في أوائل عام 2026. من المتوقع الانتهاء من أولى الفيلات في أوائل عام 2027، وسيتم تسليم الوحدات المتبقية تدريجيًا. تم بناء جميع الفيلات باستخدام مواد عالية الجودة.

نقاط هامة

لا يشمل سعر العقار رسوم كاتب العدل والتسجيل والإدارة والضرائب (ITP أو AJD أو ضريبة القيمة المضافة) والنفقات الأخرى المتعلقة بالشراء. يجب على المشترين تحمل هذه التكاليف الإضافية. بالإضافة إلى ذلك، نظرًا لموقعها الريفي، قد يكون النقل العام أقل ملاءمة.

تفاصيل المشروع

المشروع 4 Bed Detached Villa in Nerja
المدينة Nerja
المنطقة Costa del Sol East
Prijs €875,000
مساحة المعيشة 222 m²
السعر لكل م² €3,941 / m²
غرف النوم 4
الحمامات 3
موقف سيارات نعم
مسبح نعم
حديقة نعم
حالة البناء for_sale
مسافة الشاطئ 4.1 km
تاريخ الإنجاز 2027
تاريخ النشر 2026-04-19

Ref: VL330898

المصدر: Wikipedia, Wikidata, INE, Junta de Andalucía

نمط الحياة

هذا العقار مناسب بشكل خاص للعائلات أو الأفراد الذين يبحثون عن منزل هادئ في جنوب إسبانيا. إذا كنت تفضل القرب من البحر ولكنك ترغب أيضًا في العيش في بيئة ريفية بعيدًا عن صخب المدينة، فسيكون هذا المكان خيارًا مثاليًا. توفر غرف النوم الأربع مساحة كافية للعائلات الكبيرة أو لاستضافة الضيوف بشكل مريح. يسمح تصميم المسبح الخاص وصالة التشمس بالاستمتاع بالشمس والاسترخاء في خصوصية تامة. هذا المشروع مناسب أيضًا لأولئك الذين يقدرون جودة الحياة ويرغبون في الاستمتاع بالهدوء في الطبيعة. إذا كنت بحاجة إلى سهولة الوصول إلى المطار (63 كم) ولا تمانع في استخدام سيارتك الخاصة للتنقل اليومي، فإن هذا المشروع في نيرخا يستحق النظر فيه.

الجودة والتشطيبات

يتميز هذا المشروع الجديد للفيلات بالجودة العالية والتصميم الحديث. تم استخدام مواد بناء عالية الجودة لضمان المتانة والجمال. يركز التصميم الداخلي على المساحات المفتوحة ووفاء الضوء الطبيعي، مما يخلق جوًا مريحًا. تحتوي الفيلا على مسبح خاص وشرفات متعددة وصالة تشمس، مما يوفر مساحات واسعة للاسترخاء في الهواء الطلق. بالإضافة إلى ذلك، يوجد موقف سيارات خاص وقبو واسع لزيادة المرونة في التخزين والاستخدام. تهدف جميع المرافق، مثل تكييف الهواء (البارد والساخن)، وخزائن الملابس المدمجة، والشرفات المغطاة، إلى تعزيز الراحة. تم تقييم الحالة العامة للعقار بأنها ممتازة، وتتوافق مع معايير البناء الجديد.

البيئة ونمط الحياة

السعر والتوفر

تبدأ أسعار الفيلات المنفصلة المعروضة في هذا المشروع من 875,000 يورو. يشتمل المشروع على 4 غرف نوم و 3 حمامات، وهو مصمم لتلبية احتياجات المشترين الذين لديهم متطلبات خاصة من حيث المساحة والوظائف. نظرًا لأنه بناء جديد، قد يتأثر السعر النهائي بالموقع والاتجاه. لا يشمل السعر الضرائب ورسوم نقل الملكية ورسوم التسجيل والمصاريف الأخرى المتعلقة بالشراء. يوصى بأن يأخذ المشترون هذه النفقات المحتملة في الاعتبار عند وضع الميزانية.

€875,000
Prijs
4
غرف النوم
222 m²
مساحة المعيشة
3
الحمامات

البيئة المحيطة

تقع نيرخا على ساحل البحر الأبيض المتوسط في الأندلس، وهي جزء من مقاطعة مالاغا، وتقع على بعد حوالي 50 كم شرق مالاغا. تشتهر المنطقة بشواطئها الساحرة، وبيئتها الريفية الهادئة، وإطلالاتها الخلابة. تعد المنطقة التي يقع فيها المشروع منطقة سكنية ناشئة تجمع بين وسائل الراحة الحديثة وهدوء الريف. على الرغم من مساحة المنطقة الواسعة (85 كم مربع)، فإن موقع المشروع يتيح الاستمتاع بقرب الساحل مع تجنب صخب المدينة. يبلغ متوسط درجة الحرارة بين 8-24 درجة مئوية، ويبلغ متوسط عدد ساعات سطوع الشمس السنوي 3934 ساعة، مما يوفر ظروفًا مثالية للأنشطة الخارجية. يبلغ عدد سكان المنطقة 22,132 نسمة (حسب توقعات عام 2025)، كما أن السياحة مزدهرة (22 فندقًا و 2409 سريرًا)، مما يشير إلى حيوية المنطقة على مدار العام.

طلب معلومات

الموقع والبيئة: Nerja

البيئة والوصول

تقع نيرخا في منطقة الأندلس، وعلى الرغم من مساحتها الشاسعة (85 كم مربع)، فإن موقع المشروع يوصف بأنه منطقة ريفية هادئة بالقرب من الساحل. يوفر هذا إيقاع حياة أكثر استرخاءً، مما يتناقض مع حيوية المدن المجاورة. توفر المطاعم القريبة (122) والمقاهي (29) والمتاجر (سوبر ماركت على بعد 4.5 كم) وسائل الراحة الأساسية. المنطقة غنية بالموارد التعليمية، حيث تضم 7 مدارس ابتدائية و 2 مدرسة ثانوية. كما أن الخدمات الصحية جيدة، مع 9 صيدليات ومركز صحي واحد، وتقع المستشفى على بعد حوالي 25 كم. في حين أن المنطقة تضم 23 محطة للنقل العام و 6 خطوط حافلات، تشير البيانات إلى الاعتماد الكبير على السيارات الخاصة، خاصة للتنقلات اليومية.

الخريطة والموقع

يقع المشروع في ضواحي نيرخا، بالقرب من الساحل، ولكنه يقع على قطعة أرض مرتفعة نسبيًا مع انحدار كبير. تظهر الخريطة أن المنطقة المحيطة بالمشروع مغطاة بالخضرة، مما يؤكد طابعها الريفي. تقع الطرق الرئيسية ومرافق المدينة على مسافة ما، ولكن يمكن الوصول إليها بالسيارة الخاصة.

White arches balcony with ocean and mountain view, brick flooring, black railing.

الموقع الإقليمي

تقع نيرخا في الجزء الشرقي من مقاطعة مالاغا، وهي جزء من منطقة كوستا ديل سول. ومع ذلك، فإن موقعها الجغرافي يمنحها تميزًا فريدًا في المنطقة. مقارنة بالمدن الغربية الأكثر ازدحامًا مثل ماربيا أو بينا المادينة، تحتفظ نيرخا بسحر تقليدي أكثر لبلدة إسبانية ساحلية، مع جاذبية إضافية بسبب جمالها الطبيعي وقربها من الجبال. يوفر موقع المشروع في منطقة ريفية هادئة، على مسافة معينة من وسط نيرخا والشواطئ، بيئة منعزلة، مع الحفاظ على سهولة الوصول إلى المرافق في المنطقة المحيطة.

المرافق والوصول

يقع أقرب شاطئ، بلايا دي لاس ألبركياس، على بعد حوالي 4.1 كم من المشروع. تقع شواطئ أخرى مثل كالا ديل بينو (4.4 كم) وبلايا دي مارو (4.5 كم) على مسافة قريبة أيضًا. تضم المنطقة 4 شواطئ حاصلة على العلم الأزرق، بما في ذلك بورريانا ومارو وبلايازو-تشوتشو وتوريسيليا، مما يوفر للمقيمين تجربة ساحلية عالية الجودة. يستمتع عشاق الجولف بالملاعب المتعددة على بعد حوالي 61-65 كم. يقع مطار مالاغا (AGP) على بعد حوالي 63 كم (مسافة جوية)، وهو مسافة مناسبة نسبيًا للمسافرين بالطائرة. يقع أقرب سوبر ماركت وصيدلية على بعد حوالي 4.5 كم و 4.6 كم على التوالي. توجد 23 محطة للنقل العام تخدم 6 خطوط، ولكن نظرًا لموقع المشروع في منطقة ريفية، فإن السيارة الخاصة هي وسيلة النقل الرئيسية.

مسافة الشاطئ 4.1 km
Malaga-Costa del Sol (AGP) 63 km
Gibraltar (GIB) 155 km

المصدر: OpenStreetMap, Google Maps

Beachfront room with ocean view, featuring a balcony and sea access.

الطبيعة والمناخ

Beachfront apartment with ocean view, balcony, and modern amenities.

يتميز مناخ منطقة نيرخا بالاعتدال، حيث يبلغ متوسط درجة الحرارة السنوية 16.4 درجة مئوية. يمكن أن تصل درجات الحرارة القصوى في الصيف إلى 24 درجة مئوية، وتنخفض إلى حوالي 8 درجات مئوية في الشتاء. تتمتع المنطقة بحوالي 3934 ساعة من أشعة الشمس سنويًا، مما يجعلها واحدة من أكثر المناطق المشمسة في أوروبا. وهذا يجعل المنطقة مناسبة للأنشطة الخارجية على مدار العام. يمتد موسم السباحة لحوالي 4 أشهر، عندما تصل درجة حرارة المياه إلى 20 درجة مئوية أو أكثر. يقع المشروع على ارتفاع 700 متر فوق مستوى سطح البحر، مما يوفر إطلالات واسعة وقد يصاحبه مناخ جبلي. يتجه الموقع نحو الجنوب الشرقي والجنوب، مما يتيح الحصول على ضوء الشمس الكافي. على الرغم من القرب من الساحل، فإن الارتفاع العالي والانحدار بنسبة 17.0٪ يعني أن الطريق إلى الشاطئ شديد الانحدار.

3934 ساعات الشمس/سنة
4 موسم السباحة (أشهر)
16.4°C متوسط الحرارة السنوي
700m الارتفاع

المصدر: Open-Meteo (2020–2025 متوسط)

الشواطئ والترفيه

تشتهر منطقة نيرخا بشواطئها الجميلة، بما في ذلك 4 شواطئ حاصلة على العلم الأزرق: بورريانا، مارو، بلايازو-تشوتشو، وتوريسيليا، مما يوفر للمقيمين تجربة ترفيهية ساحلية عالية الجودة. يقع أقرب شاطئ، بلايا دي لاس ألبركياس، على بعد 4.1 كم فقط من المشروع. بالإضافة إلى الشواطئ، تقدم المنطقة مجموعة واسعة من خيارات الرياضة والترفيه. يوجد 125 مرفقًا رياضيًا بالقرب منها، تلبي احتياجات عشاق الرياضة المختلفة. بالإضافة إلى ذلك، هناك 122 مطعمًا و 29 مقهى، مما يوفر تنوعًا في خيارات تناول الطعام. يمكن لعشاق اليخوت اعتبار ميناء مارينا ديل إستي (9.6 كم) وجهة جذابة. توجد أيضًا العديد من نقاط المشاهدة في المنطقة، مثل ميرادور تاج دي لوس بويهيس (3.0 كم).

شواطئ

  • Playa de las Alberquillas 4.1 km
  • Cala del Pino 4.4 km
  • Playa de Maro Blue Flag 4.5 km
  • Playa del Cañuelo 4.7 km
  • Burriana Blue Flag
  • Playazo-Chucho Blue Flag

مرافق رياضية

125 المرافق المتاحة

المصدر: Blue Flag 2026, OpenStreetMap, CSD

Coastal view room with balcony, ocean, palm trees, and distant mountains.

الموقع الإقليمي

تقع نيرخا في الجزء الشرقي من مقاطعة مالاغا، وهي جزء من منطقة كوستا ديل سول. ومع ذلك، فإن موقعها الجغرافي يمنحها تميزًا فريدًا في المنطقة. مقارنة بالمدن الغربية الأكثر ازدحامًا مثل ماربيا أو بينا المادينة، تحتفظ نيرخا بسحر تقليدي أكثر لبلدة إسبانية ساحلية، مع جاذبية إضافية بسبب جمالها الطبيعي وقربها من الجبال. يوفر موقع المشروع في منطقة ريفية هادئة، على مسافة معينة من وسط نيرخا والشواطئ، بيئة منعزلة، مع الحفاظ على سهولة الوصول إلى المرافق في المنطقة المحيطة.

دليل المنطقة: Nerja

Nerja is a municipality on the Costa del Sol in the province of Málaga in the autonomous community of Andalusia in southern Spain. It is part of the comarca of La Axarquía. It is on the country's southern Mediterranean coast, about 50 kilometres (31 mi) east of Málaga.

حقائق أساسية

85.0 km² المساحة

المناخ

الشهر متوسط الحرارة معدل الأمطار
يناير 8.5°C 71 mm
فبراير 8.6°C 77 mm
مارس 10.9°C 79 mm
أبريل 12.9°C 64 mm
مايو 15.1°C 58 mm
يونيو 19.8°C 20 mm
يوليو 23.9°C 1 mm
أغسطس 24.4°C 4 mm
سبتمبر 20.4°C 21 mm
أكتوبر 16.1°C 55 mm
نوفمبر 11.9°C 91 mm
ديسمبر 9.0°C 72 mm

المرافق القريبة

122 restaurant
4 school
9 pharmacy
13 bank
29 cafe
5 dentist

الارتفاع والتضاريس

700m الارتفاع
4.1 km مسافة الشاطئ
17.0% الانحدار إلى الشاطئ

شديد الانحدار

معالم قريبة

نقاط مشاهدة

Ev Charging

شواطئ

موانئ ترفيهية

النقل والوصول

63 km Malaga-Costa del Sol (AGP)
155 km Gibraltar (GIB)
331 km Alicante-Elche (ALC)

ملخص

  • فيلا منفصلة جديدة، 4 غرف نوم، 3 حمامات، مع مسبح خاص وصالة تشمس.
  • تقع في منطقة ريفية هادئة في نيرخا، بالقرب من الساحل، مع إطلالات على البحر والجبال.
  • تم الحصول على ترخيص البناء، ومن المقرر بدء الإنشاءات في أوائل عام 2026، وتسليم الوحدات الأولى في أوائل عام 2027، بجودة ممتازة.
  • تحيط بها طبيعة خلابة، مناخ معتدل، ضوء شمس وفير (3934 ساعة سنويًا).
  • السعر يبدأ من 875,000 يورو، ولا يشمل رسوم الشراء والضرائب.

مقارنة إقليمية

مقارنة بمشاريع سكنية أخرى على كوستا ديل سول، غالبًا ما تقدم مشاريع الفيلات المنفصلة في نيرخا أجواء ريفية أكثر هدوءًا وقد تكون أسعارها أكثر تنافسية، خاصة في المناطق البعيدة عن مراكز السياحة الرئيسية. على سبيل المثال، مشاريع مثل Acqua Gardens (بدءًا من 418,800 يورو) و Aby Upper (بدءًا من 320,000 يورو) في إستي بونا، على الرغم من أسعارها المنخفضة، تقع في مناطق أكثر كثافة وقد تقدم تجربة معيشية مختلفة. Alba Benalmadena (بدءًا من 699,000 يورو) في بينا المادينة تقع في منطقة أخرى، مع نطاق سعري مشابه لهذا المشروع، ولكن قد تختلف خصائصها الجغرافية والبيئية. مشروعنا، بسعر يبدأ من 875,000 يورو، يوفر ملكية مستقلة ومساحة معيشة واسعة والمناظر الطبيعية الفريدة في نيرخا، مما يجعله مميزًا إلى حد ما في سوق العقارات الفاخرة في كوستا ديل سول.

الأسئلة الشائعة

هل هذه الفيلا مناسبة للإقامة الدائمة أم أنها مخصصة للعطلات بشكل أساسي؟
حجم الفيلا وعدد غرف النوم والمرافق (مثل المسبح الخاص) تجعلها مناسبة للإقامة الدائمة. في الوقت نفسه، فإن بيئتها الريفية الهادئة وقربها من الساحل تجعلها مناسبة أيضًا كمنزل لقضاء العطلات.
كم يستغرق الوصول إلى أقرب سوبر ماركت وصيدلية؟
يقع أقرب سوبر ماركت وصيدلية على بعد حوالي 4.5 كم و 4.6 كم على التوالي، وتستغرق الرحلة بالسيارة بضع دقائق.
ما هي خصائص العزل الحراري والصوتي للمنزل؟
كمبنى جديد، من المتوقع أن يتبع معايير البناء الحديثة، ولكن لم يتم تقديم بيانات محددة عن العزل الحراري والصوتي.
كيف هو سوق العقارات الحالي في نيرخا؟
تعد نيرخا جزءًا من كوستا ديل سول، وسوق العقارات نشط وجذاب للمشترين المحليين والدوليين. المنطقة تحظى بتقدير خاص لجمالها الطبيعي وبيئتها الهادئة نسبيًا.
ما هي المدارس الموجودة بالقرب من المشروع؟
توجد في منطقة نيرخا 7 مدارس ابتدائية و 2 مدرسة ثانوية، وتقع على مسافة معينة بالسيارة من المشروع.
ما هي التكاليف الأخرى المرتبطة بالشراء بخلاف سعر العقار؟
السعر لا يشمل ضريبة نقل الملكية (ITP أو ضريبة القيمة المضافة)، رسوم كاتب العدل، رسوم التسجيل، رسوم الإدارة، والنفقات الأخرى المتعلقة بالشراء.
ما هي عملية شراء العقار؟
تتضمن عملية الشراء القياسية توقيع اتفاقية الحجز، ودفع وديعة، وتوقيع عقد البيع (Escritura de Compraventa)، وإتمام الصفقة في النهاية لدى كاتب العدل مع دفع المبلغ المتبقي.
هل وسائل النقل العام مريحة في هذه المنطقة؟
توجد 23 محطة للنقل العام و 6 خطوط حافلات في المنطقة، ولكن نظرًا لموقع المشروع في بيئة ريفية، فإن السيارة الخاصة هي وسيلة النقل الرئيسية.
Maiko
Maiko
خبير عقاري

مايكو خبير عقاري متخصص في سوق الإسكان الإسباني. بفضل معرفته العميقة بساحل كوستا ديل سول وكوستا بلانكا والمناطق الساحلية الشهيرة الأخرى، فإنه يساعد المشترين في العثور على العقار المناسب. يقوم بتحليل العروض بناءً على الموقع والقيمة السوقية وجودة البناء وقابلية السكن، ويقدم نصائح صادقة ومستندة إلى البيانات طوال عملية الشراء بأكملها.

رد خلال 24 ساعة

مهتم؟

اترك بياناتك واحصل على معلومات عن التوفر، والأسعار، والمخططات.

المواصفات الفنية
تم الحصول على ترخيص البناء.
من المتوقع الانتهاء من الوحدات الأولى في أوائل عام 2027.
تحتوي الفيلا على مسبح خاص وصالة تشمس.
اتجاه الفيلا هو الجنوب الشرقي والجنوبي.
انحدار قطعة الأرض هو 17.0%.

Conversation history

Ask a question to start