Residential Plot in Coín w Coín — Działka Budowlana
Działka Budowlana

Działka Budowlana na Sprzedaż w Coín, Málaga

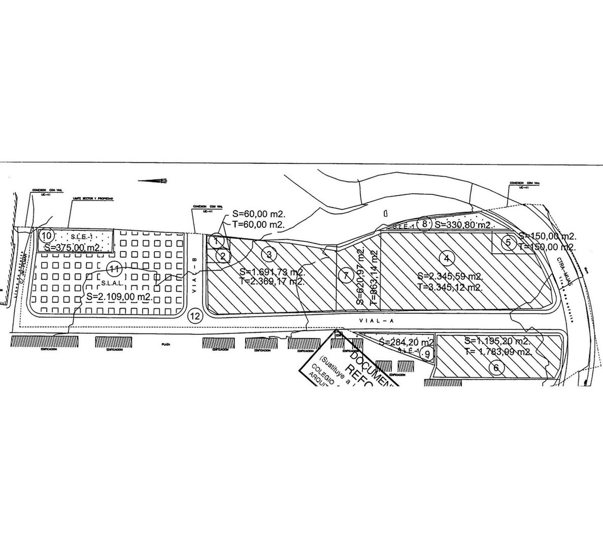
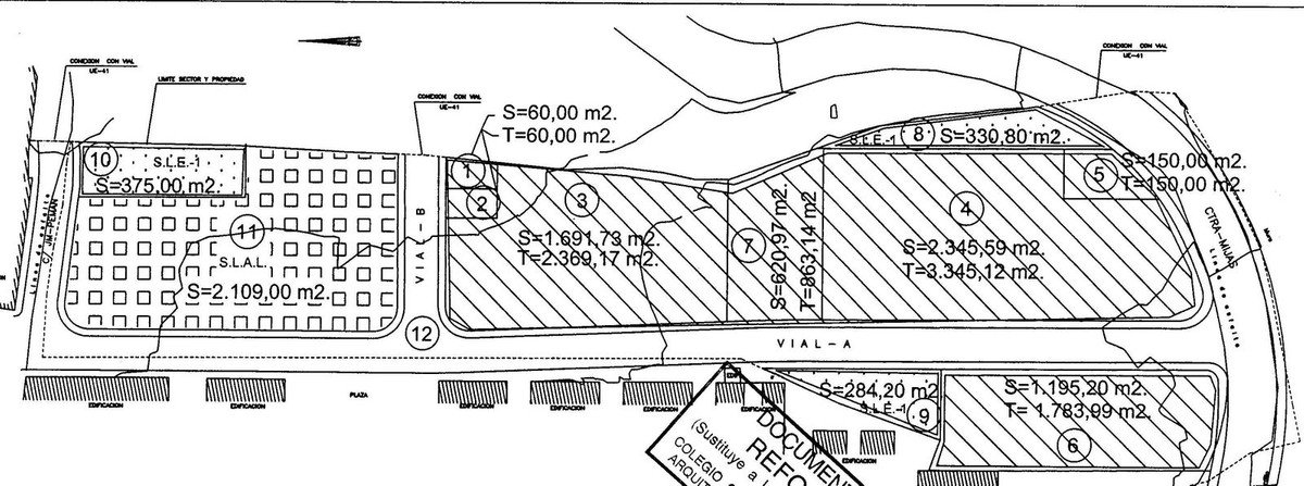
Działka ta w Coín, Málaga, oferuje miejską lokalizację z udogodnieniami w zasięgu spaceru i dobrym połączeniem komunikacyjnym. Mając powierzchnię 1195 m², jest częścią strefy ekspansji miejskiej, która obiecuje rentowny rozwój. Lokalizacja, około 33 km od stolicy prowincji Málaga, łączy bliskość centrum prowincjonalnego z spokojem małego miasta. Projekt obejmuje budowę 22 mieszkań i lokali użytkowych, ze wszystkimi zatwierdzeniami miejskimi i planowaniem zakończonym. Stanowi solidną okazję inwestycyjną na rozwijającym się rynku Coín.

Od €889.000
2113 m²
Powierzchnia
Od €889.000
Cena od
Do odbioru kluczy
Status budowy

Analiza projektu

Kluczowe cechy lokalizacji, domów, etapu budowy i uwagi.

Lokalizacja

Działka znajduje się w miejskim otoczeniu w Coín, ze sklepami i usługami w zasięgu kilku minut spacerem. Połączenie z Malagą i Marbellą jest dobre, co czyni lokalizację atrakcyjną dla osób dojeżdżających codziennie i szukających miejskich wygód. Okolica oferuje połączenie życia miejskiego z bliskością natury.

Układ

Działka ta jest skierowana do inwestorów i deweloperów poszukujących możliwości rozwoju w ustabilizowanym mieście. Jest przeznaczona do budowy budynków mieszkalnych z lokalami użytkowymi na parterze. Jej wielkość i planowanie urbanistyczne umożliwiają tworzenie przestrzeni życiowych i potencjalnych możliwości biznesowych, odpowiadając na potrzeby rozwijającego się rynku.

Status projektu

Budowa na tej działce jest już zatwierdzona, a planowanie zakończone. Jest to trzeci z trzech planowanych etapów budowy, co wskazuje na stopniowy rozwój obszaru. Infrastruktura i wszystkie opłaty miejskie za plan zagospodarowania przestrzennego są już opłacone. Możliwość rozpoczęcia budowy jest natychmiastowa.

Ważne uwagi

Działka ta jest wyłącznie terenem budowlanym i nie obejmuje żadnej istniejącej nieruchomości. Infrastruktura do podłączenia do usług publicznych, takich jak prąd i woda pitna, jest dostępna, ale może wymagać dostosowania do specyficznego projektu budowlanego. Plany budowlane są szczegółowe i muszą być przestrzegane.

Szczegóły projektu

Projekt Residential Plot in Coín
Miasto Coín
Region Costa del Sol
Cena od €889.000
Powierzchnia 2113 m²
Cena za m² €420 / m²
Parking Tak
Basen Nie
Ogród Nie
Status budowy key_ready
Zakończenie 1970
Opublikowano 2026-04-18

Ref: VL326664

Źródło: Wikipedia, Wikidata, INE, Junta de Andalucía

Styl życia i okolica

Ta oferta jest skierowana do doświadczonych deweloperów i inwestorów poszukujących rentownej możliwości rozwoju w strategicznie położonym regionie Andaluzji. Nadaje się do projektów celujących w rosnące zapotrzebowanie na mieszkania w rozwijających się miastach, takich jak Coín, które ma dobre połączenie z większymi centrami, jak Málaga i Marbella. Idealna dla firm chcących rozszerzyć swoją obecność na hiszpańskim rynku nieruchomości i skorzystać z obszaru oferującego zarówno miejskie udogodnienia, jak i atrakcyjną jakość życia. Inwestorzy elastyczni w transakcjach i zainteresowani wymianą również znajdą tu odpowiednią okazję. Nie jest przeznaczona dla użytkowników końcowych szukających gotowego domu.

Jakość i wykończenie

Sama działka jest terenem miejskim z ostatecznym zatwierdzeniem przez Ratusz w Coín. Plany dotyczące budowanego budynku obejmują podziemny parking o powierzchni 1 195 m² przeznaczony na miejsca parkingowe i magazyny. Ponadto planowane jest pierwsze piętro dla lokali użytkowych oraz pierwsze, drugie, trzecie i penthouse, które łącznie obejmują 22 jednostki mieszkalne. Wykonalność budowlana jest potwierdzona wydanym pozwoleniem na budowę. Szczegółowe informacje dotyczące jakości materiałów i ostatecznego wykończenia przyszłych mieszkań i lokali użytkowych są częścią szczegółowego projektu budowlanego, który jest wliczony w cenę zakupu i będzie dalej rozwijany.

Okolica i styl życia

Cena i dostępność

Działka budowlana w Coín jest oferowana w cenie 889 000 €. Jest to cena stała za działkę, zawierająca zatwierdzony projekt budowlany 22 mieszkań i lokali użytkowych. Opłaty miejskie i koszty planowania zostały już w pełni uregulowane, co upraszcza proces zakupu i zmniejsza dodatkowe koszty dla kupującego. Istnieje możliwość wymiany, dzięki której inwestor mógłby pokryć część ceny zakupu poprzez przekazanie mieszkań z miejscami parkingowymi, co czyni wejście finansowe bardziej elastycznym. Działka jest obecnie dostępna jako 'Gotowa'.

€889.000
Cena od
2113 m²
Powierzchnia

Okolica i styl życia

Coín, położone w sercu Doliny Guadalhorce, oferuje autentyczne andaluzyjskie doświadczenie życiowe, zaledwie krótki przejazd samochodem od wybrzeża i stolicy prowincji. Samo miasto ma miejski charakter, z tętniącą życiem mieszanką sklepów, restauracji i lokalnych usług, łatwo dostępnych pieszo. Oficjalna populacja ponad 26 000 mieszkańców sugeruje stabilną społeczność i dobrą infrastrukturę. Otoczenie charakteryzuje się łagodnie pagórkowatym krajobrazem, który zachęca do eksploracji, jednocześnie zachowując bliskość wybrzeża i jego atrakcji, takich jak plaże i pola golfowe. Średnia roczna temperatura 18°C i ponad 3800 godzin słonecznych rocznie tworzą idealne warunki do aktywności na świeżym powietrzu i życia przez cały rok. Coín łączy tradycyjny urok z nowoczesnym rozwojem, oferując zrównoważoną jakość życia.

Poproś o informacje

Lokalizacja i okolica: Coín

Okolica i dojazd

Coín, położone w sercu Doliny Guadalhorce, oferuje zrównoważone życie między wiejskim urokiem a miejską funkcjonalnością. Otoczenie charakteryzuje się terenami rolniczymi i malowniczym, pagórkowatym krajobrazem, który sprzyja spacerom i aktywnościom na świeżym powietrzu. Jednocześnie miasto jest dobrze skomunikowane i oferuje wszystkie niezbędne usługi do codziennego życia. Supermarkety znajdują się zaledwie kilkaset metrów dalej, a ważne placówki, takie jak szpital i apteka, są dostępne w promieniu 10–161 metrów. Bliskość pól golfowych i obiektów rekreacyjnych, takich jak baseny i centra sportowe, uzupełnia ofertę rekreacyjną. Coín służy jako ważny węzeł komunikacyjny łączący miasta przybrzeżne z wnętrzem kraju.

Mapa i lokalizacja

Działka znajduje się w Coín, mieście we wnętrzu prowincji Málaga. Marker na mapie wskazuje miejską lokalizację w obrębie miasta, z dobrym połączeniem z siecią drogową i bliskością lokalnych udogodnień.

Old stone tower with arched windows, scenic hillside view, surrounded by greenery.

Położenie w regionie

Coín jest strategicznie położone we wnętrzu prowincji Málaga, około 33 km na zachód od stolicy prowincji i 30 km na północ od Marbelli. Ta lokalizacja zapewnia dobre połączenie z oboma ważnymi centrami, zarówno do celów biznesowych, jak i rekreacyjnych. Jako część Costa del Sol, region oferuje dostęp do wielu udogodnień i atrakcji turystycznych. Coín jest ustabilizowanym miastem z własną tożsamością, oferującym alternatywę dla typowo nadmorskich miejscowości, ale zachowującym bliskość do Morza Śródziemnego i międzynarodowego lotniska w Maladze.

Dojazd i udogodnienia

Dostępność do Coín jest dobra. Plaże, takie jak Playa Torreblanca, znajdują się około 17 km od hotelu. Lotnisko Málaga-Costa del Sol znajduje się zaledwie 23 km (w linii prostej), co ułatwia podróże międzynarodowe. W bezpośrednim sąsiedztwie działki (poniżej 500 m) znajdują się sklepy i apteka. Szpital znajduje się 10 km od hotelu. Dla golfistów dostępnych jest kilka pól, w tym Lauro Golf w odległości 11 km. Miasto posiada 12 przystanków transportu publicznego i 7 linii, co zmniejsza zależność od samochodu w niektórych przypadkach, chociaż samochód jest ogólnie korzystny do zwiedzania regionu.

Malaga-Costa del Sol (AGP) 23 km
Gibraltar (GIB) 78 km

Źródło: OpenStreetMap, Google Maps

Luxury villa with panoramic mountain view, private pool, and spacious living areas.

Natura i klimat

Cozy apartment with balcony, city view, modern kitchen, and large windows.

Coín cieszy się klimatem śródziemnomorskim ze średnimi temperaturami wahającymi się między 10°C a 27°C w ciągu roku, ze średnią roczną temperaturą 18°C. Region może pochwalić się imponującymi 3 866 godzinami słonecznymi rocznie, co oznacza średnio prawie 11 godzin słonecznego światła dziennie. To sprawia, że region jest atrakcyjny do aktywności na świeżym powietrzu przez cały rok. Sezon kąpielowy trwa około 4 miesięcy, podczas których temperatury wody utrzymują się stale powyżej 20°C. Wysokość 191 metrów nad poziomem morza zapewnia przyjemną bryzę i łagodzi letnie upały, podczas gdy zimy pozostają łagodne. Otoczenie charakteryzuje się pagórkowatym krajobrazem, który nadaje się do wędrówek i odkrywania przyrody.

3866 Godziny słoneczne/rok
4 Sezon kąpielowy (miesiące)
18.0°C Śr. roczna temperatura
191m Wysokość n.p.m.

Źródło: Open-Meteo (2020–2025 średnia)

Plaże i rekreacja

Chociaż Coín leży w głębi lądu, popularne plaże Costa del Sol, takie jak Playa Torreblanca-Carvajal i Playa de los Boliches, znajdują się zaledwie około 17 km od hotelu. Umożliwia to szybki dostęp do morza na dni plażowe. Dla golfistów okolica oferuje dobry wybór pól: Lauro Golf znajduje się 11 km od hotelu, a Campo Europa i Campo América tylko 13 km od hotelu. Ponadto istnieje wiele obiektów sportowych, w tym 24 różne obiekty sportowe i 'Ciudad del airsoft'. Kilka gminnych basenów, takich jak Piscina Municipal Juan Montes Hoyo (0,5 km), również oferuje możliwości rekreacyjne, szczególnie w cieplejszych miesiącach.

Golf

  • Lauro Golf 11,5 km
  • Campo Europa 13,3 km
  • Campo América 13,8 km
  • Santana Golf & Country Club 14,1 km

Obiekty sportowe

24 Dostępne obiekty

Źródło: OpenStreetMap, CSD

Położenie w regionie

Coín jest strategicznie położone we wnętrzu prowincji Málaga, około 33 km na zachód od stolicy prowincji i 30 km na północ od Marbelli. Ta lokalizacja zapewnia dobre połączenie z oboma ważnymi centrami, zarówno do celów biznesowych, jak i rekreacyjnych. Jako część Costa del Sol, region oferuje dostęp do wielu udogodnień i atrakcji turystycznych. Coín jest ustabilizowanym miastem z własną tożsamością, oferującym alternatywę dla typowo nadmorskich miejscowości, ale zachowującym bliskość do Morza Śródziemnego i międzynarodowego lotniska w Maladze.

Przewodnik po regionie: Coín

Coín is a town and municipality in the Province of Málaga, Spain, c. 33 km west of the provincial capital, Málaga, and about 30 km north of Marbella. The town has an official population of 22,000 inhabitants.

Kluczowe fakty

Klimat

Miesiąc Średnia temperatura Opady
Styczeń 10.5°C 60 mm
Luty 11.0°C 64 mm
Marzec 13.3°C 59 mm
Kwiecień 15.6°C 43 mm
Maj 18.0°C 35 mm
Czerwiec 22.6°C 9 mm
Lipiec 26.7°C 1 mm
Sierpień 27.0°C 2 mm
Wrzesień 22.9°C 15 mm
Październik 18.4°C 57 mm
Listopad 14.1°C 79 mm
Grudzień 11.1°C 67 mm

Udogodnienia w okolicy

7 restaurant
4 school
8 pharmacy

Wysokość i Teren

191m Wysokość n.p.m.

W pobliżu

Punkty widokowe

Pola golfowe

Baseny

Centra sportowe

Transport

23 km Malaga-Costa del Sol (AGP)
78 km Gibraltar (GIB)
412 km Alicante-Elche (ALC)

Podsumowanie

  • Duża działka budowlana (1195 m²) w miejskiej lokalizacji w Coín, Málaga.
  • Zatwierdzony projekt obejmujący 22 mieszkania i lokale użytkowe.
  • Dostępna infrastruktura miejska i zatwierdzone plany budowlane.
  • Strategiczna lokalizacja z dobrym połączeniem do Malagi i Marbelli.
  • Okazja inwestycyjna z potencjałem rentownego rozwoju.

Porównanie regionalne

W porównaniu do podobnych działek deweloperskich lub projektów nowobudowanych na Costa del Sol, takich jak Acqua Gardens w Esteponie (od 418 800 €) czy Alba Benalmádena w Benalmádenie (od 699 000 €), ta działka w Coín, z ceną 889 000 €, plasuje się w segmencie średnio-wyższym, szczególnie biorąc pod uwagę wliczony zatwierdzony projekt budowlany. Podczas gdy lokalizacje przybrzeżne, takie jak Estepona i Benalmádena, często korzystają bezpośrednio z popytu turystycznego i mogą osiągać wyższe ceny, Coín oferuje przewagę bardziej centralnej lokalizacji w głębi lądu z dobrym połączeniem do ważnych miast i lotniska. Fakt, że wszystkie opłaty miejskie i koszty planowania za plan zagospodarowania przestrzennego zostały już uregulowane, stanowi znaczącą wartość dodaną, obniżając całkowite koszty dla dewelopera. Opcja wymiany oferuje również elastyczność finansową, rzadko spotykaną w czystych sprzedaży działek. W porównaniu do czysto mieszkalnych kompleksów, takich jak Aby Upper w Esteponie (od 320 000 €), ten projekt jest zaprojektowany jako bardziej kompleksowy obiekt wielofunkcyjny (mieszkalno-użytkowy), skierowany do szerszego segmentu rynku i umożliwiający potencjalnie wyższe zyski.

Często zadawane pytania

Jaki jest główny cel tej działki?
Działka jest przeznaczona pod budowę budynku mieszkalno-użytkowego z 22 mieszkaniami i lokalami użytkowymi.
Jaka jest dostępność działki?
Działka znajduje się w dobrze skomunikowanej okolicy miejskiej. Autostrada jest łatwo dostępna, a lotnisko w Maladze oddalone jest o około 23 km (w linii prostej). Dostępny jest transport publiczny.
Jakie przepisy budowlane muszą być przestrzegane?
Dostępny jest szczegółowy plan budowlany z zatwierdzeniem miejskim. Obejmuje on budowę parteru dla lokali użytkowych i czterech dodatkowych pięter dla 22 mieszkań, a także podziemnego parkingu.
Jaka jest sytuacja rynkowa tego projektu?
Coín to rozwijające się miasto z rosnącym zapotrzebowaniem na mieszkania. Dobre połączenie z Malagą i Marbellą, wraz z pełnym zatwierdzeniem miejskim, czyni je atrakcyjną możliwością inwestycyjną.
Jakie udogodnienia znajdują się w pobliżu?
Supermarkety są dostępne w promieniu 485 m, apteka w promieniu 161 m. Szpital znajduje się 10 km dalej. W promieniu 2 km znajdują się również restauracje, szkoły i obiekty sportowe.
Czy przewidywane są dodatkowe koszty zagospodarowania przestrzennego lub pozwolenia?
Nie, wszystkie koszty, opłaty i podatki związane z planem zagospodarowania przestrzennego zostały zapłacone. Podana cena obejmuje zatwierdzony projekt budowlany.
Czy wymiana jest możliwa?
Tak, wymiana jest możliwa, na przykład zapłata 30% wartości poprzez przekazanie mieszkań z miejscami parkingowymi.
Jak daleko są plaże i pola golfowe?
Najbliższe plaże znajdują się około 17 km od hotelu. Najbliższe pola golfowe, Lauro Golf i Campo Europa/América, znajdują się około 11-13 km od hotelu.
Maiko
Maiko
Ekspert nieruchomości

Maiko jest ekspertem ds. nieruchomości w Hiszpanii, specjalizującym się na hiszpańskim rynku nieruchomości. Dzięki dogłębnej znajomości Costa del Sol, Costa Blanca i innych popularnych regionów przybrzeżnych pomaga kupującym znaleźć odpowiednią nieruchomość. Analizuje ofertę pod kątem lokalizacji, wartości rynkowej, jakości budowy i warunków życia, udzielając uczciwych, opartych na danych porad przez cały proces zakupu.

Odpowiedź w ciągu 24h

Zainteresowany?

Zostaw dane, a otrzymasz informacje o dostępności, cenach i planach.

Dane techniczne
Powierzchnia działki: 1195 m².
Zatwierdzona powierzchnia zabudowy nad ziemią: 1783,99 m².
Zatwierdzona powierzchnia podziemna: 1195,20 m² na parking i magazynowanie.
Budynek składający się z parteru (usługowy) + 4 piętra (22 mieszkania).

Historia rozmowy

Zadaj pytanie, aby zacząć