2 Bed Commercial Premises in Estepona in Estepona — Commercial Premises
Commercial Premises

Commercial Premises for Sale in Estepona

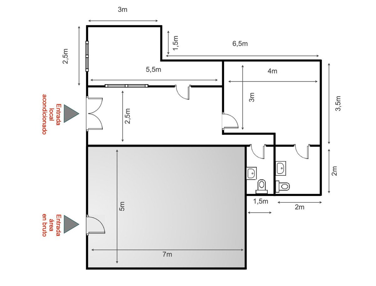
This 98 m² commercial premises in Estepona offers significant potential for transformation. Located in an urban environment, it is within walking distance of amenities and the beach. The property is currently divided into two sections, one of which is immediately usable and the other is a shell ready for complete customization. The location combines the tranquility of a residential area with proximity to the town centre, making it attractive for both residential and commercial use.

From €215,000
2
Bedrooms
98 m²
Living Area
From €215,000
From price
0.8 km
Beach Distance
Key Ready
Build Status

Project Analysis

Key characteristics of location, homes, project phase and points of attention.

Location

The premises are strategically situated within walking distance of the coastline and various urban amenities. The proximity to the beach, shops, and restaurants within a 1 km radius facilitates an active lifestyle and offers daily convenience. The urban setting ensures a vibrant atmosphere with access to local services.

Layout

This 98 m² property is suitable for diverse applications. Its current layout, featuring two distinct areas with one ready for immediate use and the other as a shell, offers flexibility. It is potentially adaptable into a modern loft-style home or a hybrid live-work space, responding to evolving residential and professional needs in an urban context.

Project Status

The premises are ready for occupancy, meaning there are no long waiting periods for use. The construction phase is complete, allowing the buyer to commence with any modifications or use the space as is. The structure is existing and prepared for the next stage.

Points of Attention

The property is registered as commercial premises. Any change of use to residential must be verified by the buyer with the Estepona Town Council. The current state of the premises may require further investment for adaptation to specific residential or business purposes.

Project Details

Project Name 2 Bed Commercial Premises in Estepona
City Estepona
Region Costa del Sol
From price €215,000
Living Area 98 m²
Avg. price per m² €2,193 / m²
Bedrooms 2
Parking No
Pool No
Garden No
Build Status key_ready
Beach Distance 0.8 km
Completion 2004
Community Fees/yr €480
IBI/yr €420
Published 2026-04-26

Ref: VL653914

Source: Wikipedia, Wikidata, INE, Junta de Andalucía

Lifestyle & Surroundings

This property is suitable for entrepreneurs seeking a home office with direct access to clients or facilities, or for investors looking for commercial real estate with potential for value appreciation. It can serve as a dynamic office space, a gallery, or a studio, benefiting from its urban setting. Individuals aspiring to a hybrid lifestyle, combining living and working in a loft-style setup, will appreciate its adaptability. The proximity to beaches like Playa de Estepona (524 m) and Estepona's amenities (supermarket 104 m) makes it appealing for those desiring an active lifestyle with easy access to daily necessities and recreation.

Build Quality & Finishing

The premises feature a combination of existing finishes and a shell portion, offering personalization opportunities. The existing section is equipped with wood flooring and central heating, indicating a basic level of comfort and finish. The southwest orientation suggests good natural light, particularly in the afternoons. Although the property is offered unfurnished, it provides a solid structure that can be adapted to modern aesthetics and functionality. The shell area can be outfitted according to the buyer's vision, allowing freedom to choose materials and layouts that suit the intended use, whether residential or commercial.

Price & Context

Price & Availability

The premises are offered starting from €215,000. Given its commercial type and usage flexibility, this price represents an entry-level opportunity in Estepona's real estate market. Availability is immediate, as the property is ready for handover. Price variations are not specified, but the stated starting price positions the offering in the mid-range of the local commercial property market, considering its size and location.

€215,000
From price
2
Bedrooms
98 m²
Living Area
€480
Community Fees/yr
€420
IBI/yr

Context & Surroundings

This commercial premises in Estepona provides a versatile base for various interpretations. With 98 m², the potential for adaptation is substantial, partly due to its current division into two sections. One part is ready for immediate use, while the other functions as a shell, offering space for creative layouts. Its location in an urban zone, within walking distance of the beach (524 m from Playa de Estepona), indicates a dynamic environment. Amenities such as a supermarket (104 m) and pharmacy (236 m) are within easy reach, contributing to daily convenience. The proximity to sports facilities like Polideportivo Municipal (0.4 km) and a wide array of restaurants (50 within 2 km) underscores the vibrant character of the surroundings. This property is suited for those seeking a space that is both functional and adaptable, with the benefits of a coastal location.

Request Information

Location: Estepona

Living & Surroundings

Life in Estepona surrounding these premises is characterized by urban dynamism and coastal proximity. With a supermarket just 104 meters away and a pharmacy at 236 meters, daily necessities are readily available. The beach, Playa de Estepona, is 524 meters away (as the crow flies), a short walk for recreation or relaxation by the sea. The area boasts 50 restaurants within a 2 km radius, indicating a diverse culinary scene. The presence of 6 schools and 19 primary schools in the municipality highlights the region's family-friendly potential. The mild climate, with average temperatures between 12-28°C and 3,848 annual sunshine hours, encourages outdoor living for most of the year.

Map & Location

This commercial premises is situated in the urban core of Estepona, Málaga. The map highlights its immediate proximity to amenities like supermarkets and pharmacies, as well as the short distance to the coastline with its various beaches. The location emphasizes the walking distance to both the beach and the town centre, offering a high degree of urban convenience.

Aerial view of a coastal town with a sandy beach and ocean waves.

Location in the Region

Estepona is strategically positioned on the Costa del Sol, within the province of Málaga. The town is nestled between the Mediterranean Sea and the Sierra Bermeja mountain range, offering a varied landscape. It serves as a key point within the region, with relatively short distances to other well-known coastal towns. Its location strikes a balance between the tranquility of a coastal town and proximity to urban centres such as Marbella (approx. 30 km) and the provincial capital, Málaga (approx. 85 km). This places Estepona as an attractive location for those wishing to experience the dynamism of the Costa del Sol without being in the most bustling areas.

Accessibility & Amenities

This commercial premises offers excellent accessibility. The beach (Playa de Estepona) is 524 meters away, and other beaches like La Rada (769 m) and Playa del Cristo (1.6 km) are also nearby. Málaga Airport (AGP) is approximately 64 km away, and Gibraltar (GIB) is about 36 km away (as the crow flies), facilitating international connections. For daily shopping, a supermarket is located 104 m away, and a pharmacy is at 236 m. Golfers have access to courses such as Valle Romano Golf (4.1 km). The proximity of 50 public transport stops with 8 bus lines provides alternatives to driving, although a car is recommended for full flexibility in this region.

Beach Distance 0.8 km
Gibraltar (GIB) 36 km
Malaga-Costa del Sol (AGP) 64 km

Source: OpenStreetMap, Google Maps

Aerial view of a coastal resort with a private beach, pool, and marina.

Nature & Climate

Cozy beachfront apartment with ocean view, balcony, and modern amenities.

Estepona enjoys a Mediterranean climate, with average annual temperatures around 19.2°C and an impressive 3,848 hours of sunshine per year. The swimming season extends over 5 months, with water temperatures remaining comfortable during this period. The landscape around Estepona ranges from fertile valleys to mountainous areas like the Sierra Bermeja, reaching an elevation of 1,449 meters. The property itself is situated 15 meters above sea level, contributing to a pleasant, flat environment close to the coast. The gradient towards the nearest beach, La Rada, is a mere 1.9%, underscoring its proximity and accessibility.

3848 Sunshine Hours/Year
5 Swim Season Months
19.2°C Avg. Annual Temperature
15m Elevation

Source: Open-Meteo (2020–2025 average)

Beaches & Recreation

Estepona's coastline offers diverse recreational opportunities, with Playa de Estepona located 524 meters and La Rada 769 meters away (as the crow flies). For water sports enthusiasts, various options are available, and the region features 134 sports facilities, including sports centres just 0.4 km away. The presence of golf courses like Valle Romano Golf (4.1 km) and Azata Golf (4.4 km) within a 5 km radius will appeal to golfers. Marinas such as Puerto Estepona (1.7 km) and Puerto Deportivo (1.9 km) provide opportunities for nautical leisure. The 2 parks within a 2 km radius contribute to the green ambiance and recreational options in the immediate vicinity.

Beaches

  • La Rada 0.8 km
  • Playa del Angel 1.6 km
  • Playa del Cristo 2.4 km
  • Playa de Punta Plata 2.5 km
  • Playa del Padron 3.9 km
  • Play Costa Natura (Nudist) 4.5 km

Golf

  • Azata Golf 5.1 km
  • Estepona Golf 6.2 km
  • Golf Academy Albayt Resort 6.4 km
  • Club de Golf El Coto de la Serena 7.6 km

Sports Facilities

134 Facilities Available

Source: OpenStreetMap, CSD

Beachfront room with ocean view, featuring a balcony and modern amenities.

Location in the Region

Estepona is strategically positioned on the Costa del Sol, within the province of Málaga. The town is nestled between the Mediterranean Sea and the Sierra Bermeja mountain range, offering a varied landscape. It serves as a key point within the region, with relatively short distances to other well-known coastal towns. Its location strikes a balance between the tranquility of a coastal town and proximity to urban centres such as Marbella (approx. 30 km) and the provincial capital, Málaga (approx. 85 km). This places Estepona as an attractive location for those wishing to experience the dynamism of the Costa del Sol without being in the most bustling areas.

Area Guide: Estepona

Estepona is a town and municipality in the comarca of the Costa del Sol, southern Spain. It is located in the province of Málaga, part of the autonomous community of Andalusia. Its district covers an area of 137 square kilometers in a fertile valley crossed by small streams and a mountainous areas dominated by the Sierra Bermeja, which reaches an elevation of 1,449 m at the peak of Los Reales.

Key Facts

137.0 km² Area

Climate

Month Avg. Temperature Rainfall
January 12.5°C 98 mm
February 12.9°C 97 mm
March 15.0°C 89 mm
April 16.8°C 60 mm
May 18.8°C 46 mm
June 23.3°C 13 mm
July 27.3°C 0 mm
August 27.8°C 3 mm
September 24.0°C 22 mm
October 19.9°C 78 mm
November 15.9°C 124 mm
December 13.1°C 106 mm

Nearby Amenities

50 restaurant
6 school
18 pharmacy
4 bank
2 park
22 cafe
5 dentist

Elevation & Terrain

15m Elevation
0.8 km Beach Distance
1.9% Gradient to beach

Flat

Nearby Highlights

Golf Courses

Sports Centres

Marinas

Viewpoints

Ev Charging

Beaches

Transport & Access

36 km Gibraltar (GIB)
64 km Malaga-Costa del Sol (AGP)
455 km Alicante-Elche (ALC)
1.6 km Estación de Autobuses Estepona

Summary

  • 98 m² commercial premises with adaptable space in Estepona.
  • Located within walking distance of the beach and amenities, ideal for live-work combinations.
  • Immediately available, ready for use or customization.
  • Priced from €215,000, with flexible layout possibilities.
  • Strategic Costa del Sol location with good accessibility.

Regional Comparison

Compared to other recent projects in Estepona, such as Etherna Homes (from €259,000) and Edificio Serena (from €222,145), this commercial premises, with its starting price of €215,000, is attractively positioned in the lower segment, especially considering its versatile nature. Edificio Solmar is similarly priced (€209,166), but this property offers a different type of usage potential. While many residential projects focus on specific desires like sea-view apartments or villas with private gardens, this commercial premises presents a unique opportunity for a hybrid concept. Its urban location with direct access to amenities distinguishes it from projects in more secluded residential zones. The proximity to Estepona's beach and centre remains a consistent value-adding factor for real estate in this municipality. The choice for this property depends on the specific need for adaptable space versus a traditional home.

Frequently Asked Questions

Is this property suitable for permanent living?
The property is registered as commercial premises. A change of use to residential must be verified by the buyer with the Estepona Town Council. The current state and layout can be adapted for habitation.
What is the public transport accessibility like?
There are 50 public transport stops nearby with 8 bus lines, offering mobility options without a car.
What finishing materials are used?
The premises are partially finished with wood flooring. The shell area can be finished according to the buyer's preferences.
What are the typical costs for buyers of commercial property?
Costs include Property Transfer Tax (ITP) up to 7%, notary fees (€500-€2,000), land registry fees (€250-€1,500), and potential agency fees (€300-€500). Municipal capital gains tax is borne by the seller.
Are there sports facilities nearby?
Yes, there are various sports facilities nearby, including sports centres 0.4 km away and golf courses within a 5 km radius.
What are the estimated additional costs beyond the purchase price?
Additional costs are estimated at approximately 10% of the purchase price, including taxes, notary fees, and registry fees.
How long does the purchase process typically take?
The purchase process depends on individual circumstances and the efficiency of the parties involved and the municipality. As the premises are ready, handover can proceed relatively quickly after agreement.
How far is it from the nearest beach?
The nearest beach, Playa de Estepona, is located 524 meters away as the crow flies.
Emma Whitfield
Emma Whitfield
Real Estate Expert

With years of experience, Emma Whitfield expertly guides English-speaking clients through the intricacies of the Spanish property market. Her dedication ensures a smooth journey.

AI-assisted multilingual representative. Your inquiry is handled by our real support team.

Response within 24 hours

Interested?

Leave your details and we will contact you shortly with more information about this project.

Technical Facts
The premises have a living area of 98 m².
The orientation of the premises is southwest.
Central heating is available in the premises.

Conversation history

Ask a question to start